Аренда коммерческой недвижимости · Офис · 221 m²

Janáčkovo nábřeží, Praha - Smíchov

Цена 95 000 Kč

Описание
переведено с чешского

GLJ Partners эксклюзивно предлагает в аренду просторное офисное помещение в привлекательном районе Прага 5 - Смíchov, улица Janáčkovo nábřeží.
Офис находится рядом с автобусной остановкой Středočeská, что обеспечивает отличную доступность общественного транспорта. Помещения подходят для реконструкции в соответствии с потребностями арендатора, при этом владелец готов обсуждать разделение и изменение пространства.

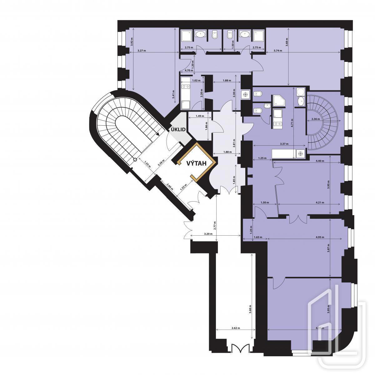
Планировка: 7 отдельных рабочих комнат, 2 кухни, 6 туалетов
Площадь: 221 м2 (1-й подвал 77 м2, 1-й этаж 144 м2)
Этаж: 1-й подвал и 1-й этаж
Арендная плата: 95 000 CZK / месяц
Въезд: по договоренности

Оснащение и планировка:
Офис находится до реконструкции, что позволяет адаптировать помещения точно под нужды арендатора. Всего 7 отдельных рабочих комнат, 2 кухни и 6 туалетов обеспечивают комфортную рабочую среду. Владелец готов обсуждать разделение и финансирование реконструкции.

Расположение:
Помещения расположены в Праге 5 - Смíchov, очень близко к трамвайной остановке Zborovská и станции метро Anděl. Район предлагает полный набор инфраструктуры, рестораны, кафе и отличную транспортную доступность.

Просмотры возможны по предварительной договоренности. Свяжитесь с нами для получения дополнительной информации!
ID заказа: J1378

Особенности

Дата обновления
20.02.2026
Площадь недвижимости
221 m²
Тип
Офис
Состояние недвижимости
В процессе строительства

Маркер на карте показывает ориентировочное местоположение объекта

Ближайшие места и приблизительный маршрут к ним:

Трамвайная остановка
317 m
Супермаркет
529 m
Супермаркет
582 m
Супермаркет
312 m
Торговый центр
529 m
Торговый центр
540 m
Торговый центр
586 m
Кафе
473 m
Ресторан
344 m
GLJ Partners

GLJ Partners

Vladiszláv Jakovlev Агент недвижимости

Разговариваю:
Чешский

Позвонить