Pronájem bytu · 4+kk · 151 m²
U Soudu, Ostrava - Poruba
Cena
30 000 Kč
Vratná kauce
60 000 Kč
Poznámka k ceně
včetně vybavení a garážového stání
Popis
HELIX REALITY nabízí k pronájmu atraktivní družstevní mezonetový byt 4+kk s terasou v 6. a 7.NP s výtahem, k bytu náleží garážové stání (B3) v podzemní garáži. Podlahová plocha bytu činí 131 m2, terasa 16 m2. Byt má individuální dispoziční řešení s maximálním využitím prostoru, pronajímá se včetně stávajícího vybavení a určitě uspokojí i náročného zájemce.
Byt se nachází v novější zástavbě Poruby na ul. U Soudu v bytovém komplexu kolaudovaném v roce 2007.
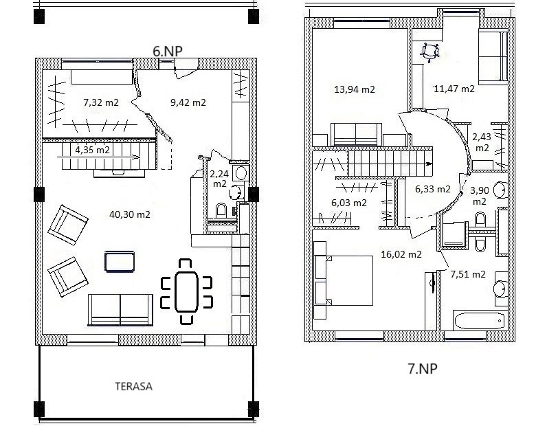
Popis 6.NP - vstupní hala (9,42 m2) čtvrtkruhového půdorysu, ze které se vchází do prostorné šatny - je využívána jako příruční dílna, dále na WC s umyvadlem a pračkou a do prostorné obývací zóny s kuchyňským koutem (40,30 m2), odkud je vstup na terasu (16,15 m2) a po schodech na další podlaží.
Popis 7.NP - chodba, ložnice s koupelnou a šatnou (29,56 m2) - koupelna s oknem, vanou a WC, pracovna (13,94 m2), pokoj (11,47 m2), sociální zařízení přístupné z chodby s WC a sprchovým koutem.
Platby: nájemné + 4 239 Kč záloha k bytu pro 2 osoby, 349 Kč internet, 3 000 Kč záloha na elektřinu, celková měsíční platba pro 2 osoby cca 38 000 Kč; vratná kauce ve výši dvou nájmů, provize RK ve výši měsíčního nájmu + DPH.
Vytápění bytu radiátory a elektrickým podlahovým topením v koupelnách, přičemž ohřev studené vody pro vytápění bytu i pro spotřebu teplé vody probíhá prostřednictvím vlastní výměníkové stanice v bytě.
Hlavní přednosti bytu: praktické řešení dispozice bytu s maximálním využitím každého místa, mnoho úložného prostoru, terasa s orientací na SZ, prostorově velkorysý obývací pokoj, dostatek sociálních zařízení, garážové stání v domě.
Majitel požaduje nájemce nekuřáka a bez domácích mazlíčků. Byt bude předán k užívání do 1 měsíce od složení rezervačního poplatku.
Prohlídky s vážnými zájemci jsou možné po domluvě kdykoli.
Byt se nachází v novější zástavbě Poruby na ul. U Soudu v bytovém komplexu kolaudovaném v roce 2007.
Popis 6.NP - vstupní hala (9,42 m2) čtvrtkruhového půdorysu, ze které se vchází do prostorné šatny - je využívána jako příruční dílna, dále na WC s umyvadlem a pračkou a do prostorné obývací zóny s kuchyňským koutem (40,30 m2), odkud je vstup na terasu (16,15 m2) a po schodech na další podlaží.
Popis 7.NP - chodba, ložnice s koupelnou a šatnou (29,56 m2) - koupelna s oknem, vanou a WC, pracovna (13,94 m2), pokoj (11,47 m2), sociální zařízení přístupné z chodby s WC a sprchovým koutem.
Platby: nájemné + 4 239 Kč záloha k bytu pro 2 osoby, 349 Kč internet, 3 000 Kč záloha na elektřinu, celková měsíční platba pro 2 osoby cca 38 000 Kč; vratná kauce ve výši dvou nájmů, provize RK ve výši měsíčního nájmu + DPH.
Vytápění bytu radiátory a elektrickým podlahovým topením v koupelnách, přičemž ohřev studené vody pro vytápění bytu i pro spotřebu teplé vody probíhá prostřednictvím vlastní výměníkové stanice v bytě.
Hlavní přednosti bytu: praktické řešení dispozice bytu s maximálním využitím každého místa, mnoho úložného prostoru, terasa s orientací na SZ, prostorově velkorysý obývací pokoj, dostatek sociálních zařízení, garážové stání v domě.
Majitel požaduje nájemce nekuřáka a bez domácích mazlíčků. Byt bude předán k užívání do 1 měsíce od složení rezervačního poplatku.
Prohlídky s vážnými zájemci jsou možné po domluvě kdykoli.
Parametry
- Datum aktualizováno
- 22.05.2026
- Plocha nemovitosti
- 131 m²
- Užitná plocha
- 151 m²
- K nastěhování
- K nastěhování ihned
- Podlaží
- 6. podlaží
- Počet podlaží
- 7 podlaží
- Dispozice bytu
- 4+kk
- Typ bytu
- Mezonet
- Zařízení
- Vybavený
- Typ vlastnictví
- Družstevní
- Stav nemovitosti
- Velmi dobrý
- Energetická třída
-
B
- Vybavení budovy
- Výtah
- Místo pro auto
- Garáž
- Vybavení bytu
- Terasa, Vana, Sprchový kout, Trouba