Pronájem bytu · 3+1 · 42 m²

Renneská třída, Brno - Štýřice

Cena 16 000 Kč
Poznámka k ceně + 5.000,- Kč energie

Popis

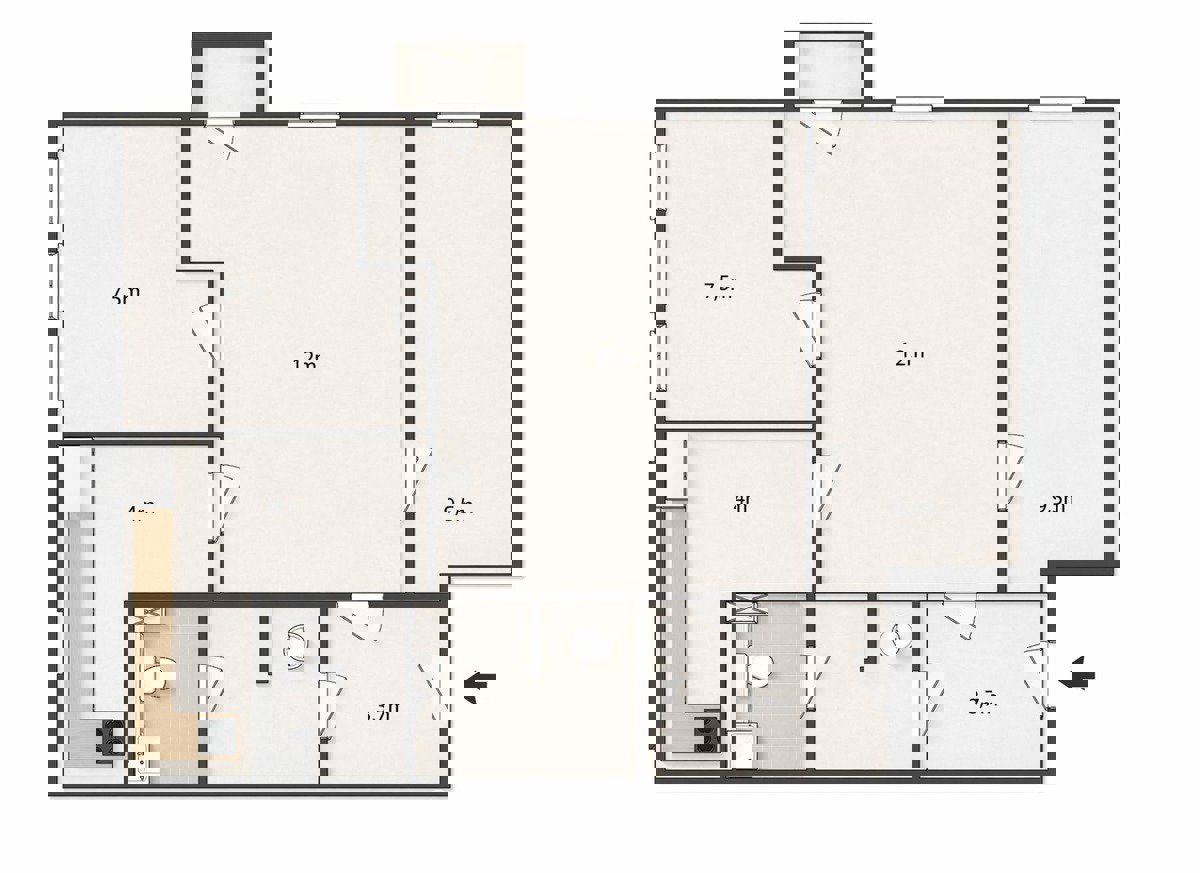
Nabízíme k pronájmu byt o dispozici 3+1 a celkové výměře 42 m², nacházející se ve vyhledávané lokalitě Brno–Štýřice, na ulici Renneská. Byt je umístěn ve vyvýšeném 1. nadzemním podlaží čtyřpodlažního domu.
Jednotka prošla rekonstrukcí a působí velmi příjemným a udržovaným dojmem. Dispozice i částečné vybavení odpovídají přiloženým fotografiím. K bytu náleží balkon a sklepní kóje o velikosti cca 2 m².

Byt je částečně zařízený (dle fotografií).

Velkou předností je samotná lokalita – Štýřice patří mezi dlouhodobě oblíbené části Brna díky výborné dostupnosti do centra města, kompletní občanské vybavenosti v okolí a zároveň klidnějšímu charakteru bydlení. Byt navíc nabízí výhled do klidné části ulice.

Byt je vhodný pro 1–2 osoby, nekuřáky, bez domácích zvířat.
Byt je ihned k nastěhování.

Nájemné: 16 000 Kč / měsíc
Zálohy na energie a služby: 5 000 Kč / měsíc
Kauce: 30 000 Kč
Provize RK - 1x nájem +21% DPH
V případě zájmu nás neváhejte kontaktovat.
Budeme se těšit na prohlídce.

Parametry

Datum aktualizováno
28.04.2026
Plocha nemovitosti
42 m²
Užitná plocha
42 m²
K nastěhování
01.05.2026
Podlaží
Přízemí
Dispozice bytu
3+1
Typ bytu
Standardní
Zařízení
Nevybavený
Typ vlastnictví
Osobní
Stav nemovitosti
Velmi dobrý
Energetická třída
G
Vybavení budovy
Sklep
Vybavení bytu
Sprchový kout, Balkón, Trouba

Značka na mapě ukazuje orientační polohu nemovitosti

Nejbližší místa a přibližná cesta k nim:

Tramvajová zastávka
51 m
Autobusová zastávka
510 m
Supermarket
262 m
Supermarket
53 m
Obchodní dům
262 m
Obchodní dům
270 m
Obchodní dům
574 m
Kavárna
111 m
Kavárna
168 m
Restaurace
318 m
Restaurace
257 m
Framireal

Framireal

Monika Matochová Realitní makléř

Mluvím:
Česky

Zavolat